+86-757-88809016
sales@gd-ylj.com
German
English
简体中文
ไทย
Filipino
Kiswahili
Français
Deutsch
لالعربية
Kreyòl Ayisyen
Bahasa Melayu
Українська
Español
Startseite
Über uns
Produkt
Profile der Vorhangfassade
Versteckter Rahmen Vorhangwand
Sichtbarer Rahmen, Versteckter Rahmen, Halbversteckter Rahmen Vorhangwand
Sichtbarer Rahmen Vorhangwand
Halbversteckter Rahmen Vorhangwand
Einrichtungsprofile
Serie seitlich aufgehängte Fenster
Schiebetür- und Fensterserie
Fenster und Türen
Schiebefenster-Serie
Serie seitlich aufgehängte Fenster
Tür-Serie
Konventionelle Standardprofile
Isolierte Fenster und Türen
Außenflügelfenster
Inneres Flügelfenster
Innen- (Außen-) Flügelfenster
Externe Schwingtür
Interne Schwingtür
Schiebefenster
Schiebetür
Nachrichten
Unternehmensnachrichten
Fall
Ehre
Kontaktieren Sie uns
Produkt
Startseite
>
Produkt
>
Isolierte Fenster und Türen
>
Interne Schwingtür
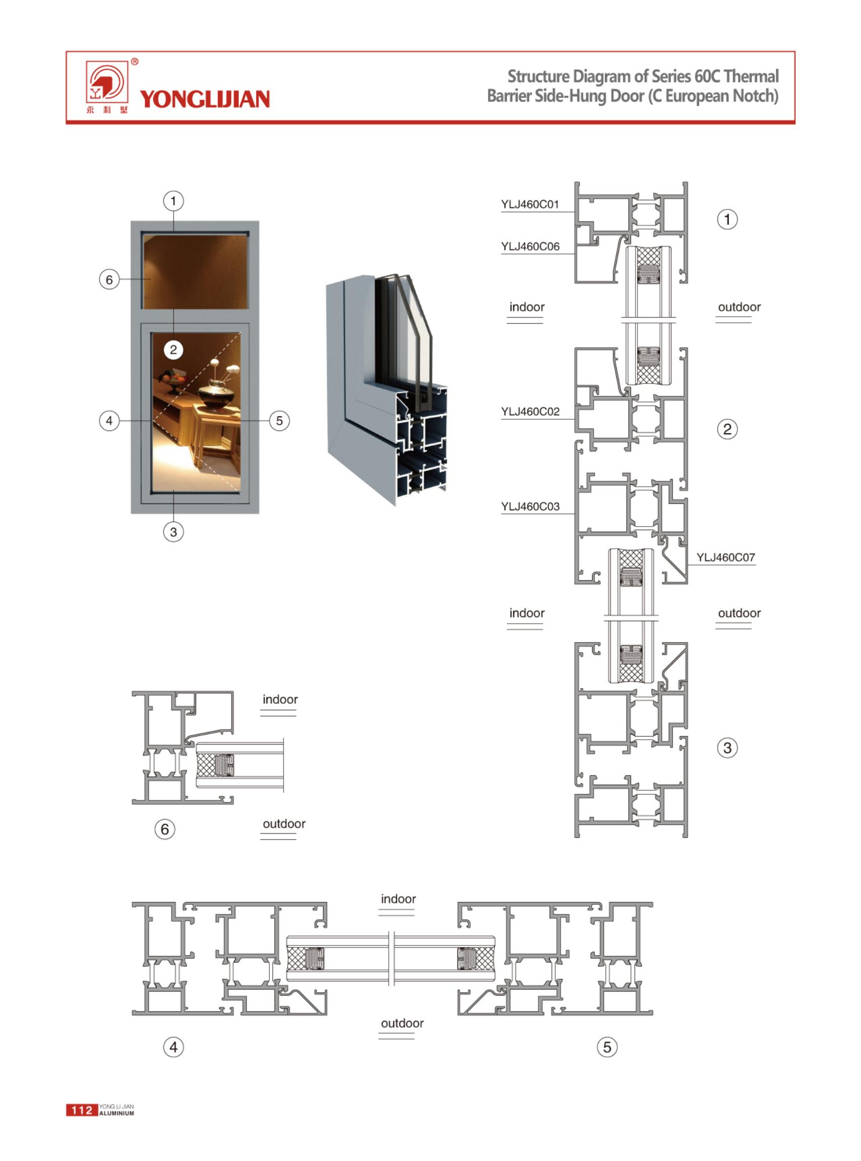
60C Wärmeschutztür mit Seitenaufhängung
Produkt-Anfrage
Nein.
58 Thermische Barriere Federtür
Details zum Produkt
Produkt-Anfrage
Online-Dienste
sales@gd-ylj.com
+86-757-88809016