+86-757-88809016
sales@gd-ylj.com
French
English
简体中文
ไทย
Filipino
Kiswahili
Français
Deutsch
لالعربية
Kreyòl Ayisyen
Bahasa Melayu
Українська
Español
Accueil
À propos de nous
Produit
Profilés de mur rideau
Mur-rideau à cadre caché
Cadre visible Cadre caché Mur-rideau à cadre semi-caché
Mur-rideau à cadre visible
Mur-rideau à cadre semi-caché
Profils d'ameublement
Série de fenêtres à suspension latérale
Série de portes et fenêtres coulissantes
Fenêtres et portes
Série de fenêtres coulissantes
Série de fenêtres à suspension latérale
Série de portes
Profilés standard conventionnels
Fenêtres et portes isolées
Fenêtre à battants externes
Fenêtre à battants internes
Fenêtre à battants interne (externe)
Porte battante extérieure
Porte battante interne
Fenêtre coulissante
Porte coulissante
Actualités
Actualités de l'entreprise
Affaire
Honneur
Contactez-nous
Produit
Accueil
>
Produit
>
Fenêtres et portes isolées
>
Fenêtre à battants internes
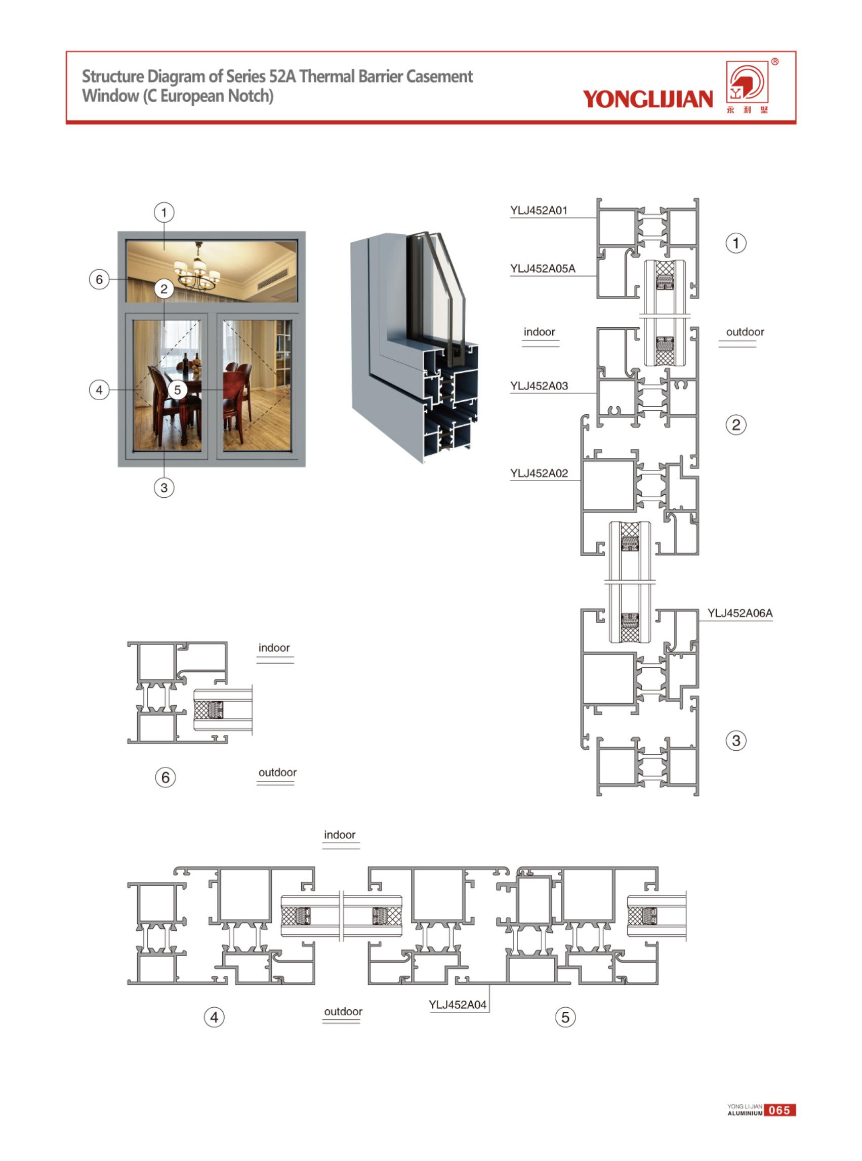
Fenêtre à battants inclinable et tournante à barrière thermique 52A
Demande de produit
Fenêtre à battants inclinable et tournante à barrière thermi
Fenêtre à battants inclinable et tournante à barrière thermi
Détails du produit
Demande de produit
Services en ligne
sales@gd-ylj.com
+86-757-88809016