+86-757-88809016
sales@gd-ylj.com
Haitian Creole
English
简体中文
ไทย
Filipino
Kiswahili
Français
Deutsch
لالعربية
Kreyòl Ayisyen
Bahasa Melayu
Українська
Español
Nouvèl
Enfòmasyon pou nou
pwodwi
Rido miray pwofil
Hidden Frame rido miray
Vizib Frame, Hidden Frame, Semi Hidden Frame rido miray
Vizib ankadreman rido miray
Semi Hidden Frame rido miray
Kay Profiles mèb
Side pandye seri fenèt
Tarif pòt ak fenèt seri
Fenèt ak pòt
Tarif Seri fenèt
Side pandye seri fenèt
Pòt Seri
Konvansyonèl pwofil estanda
Izole fenèt ak pòt
Ekstèn fenèt casement
Entèn fenèt casement
Entèn (ekstèn) fenèt casement
Pòt swing ekstèn
Entèn pòt balanse
Tarif fenèt
glise pòt
Nouvèl
Konpayi nouvèl
Jwèt
Orè
Kontakte nou
pwodwi
Nouvèl
>
pwodwi
>
Izole fenèt ak pòt
>
Tarif fenèt
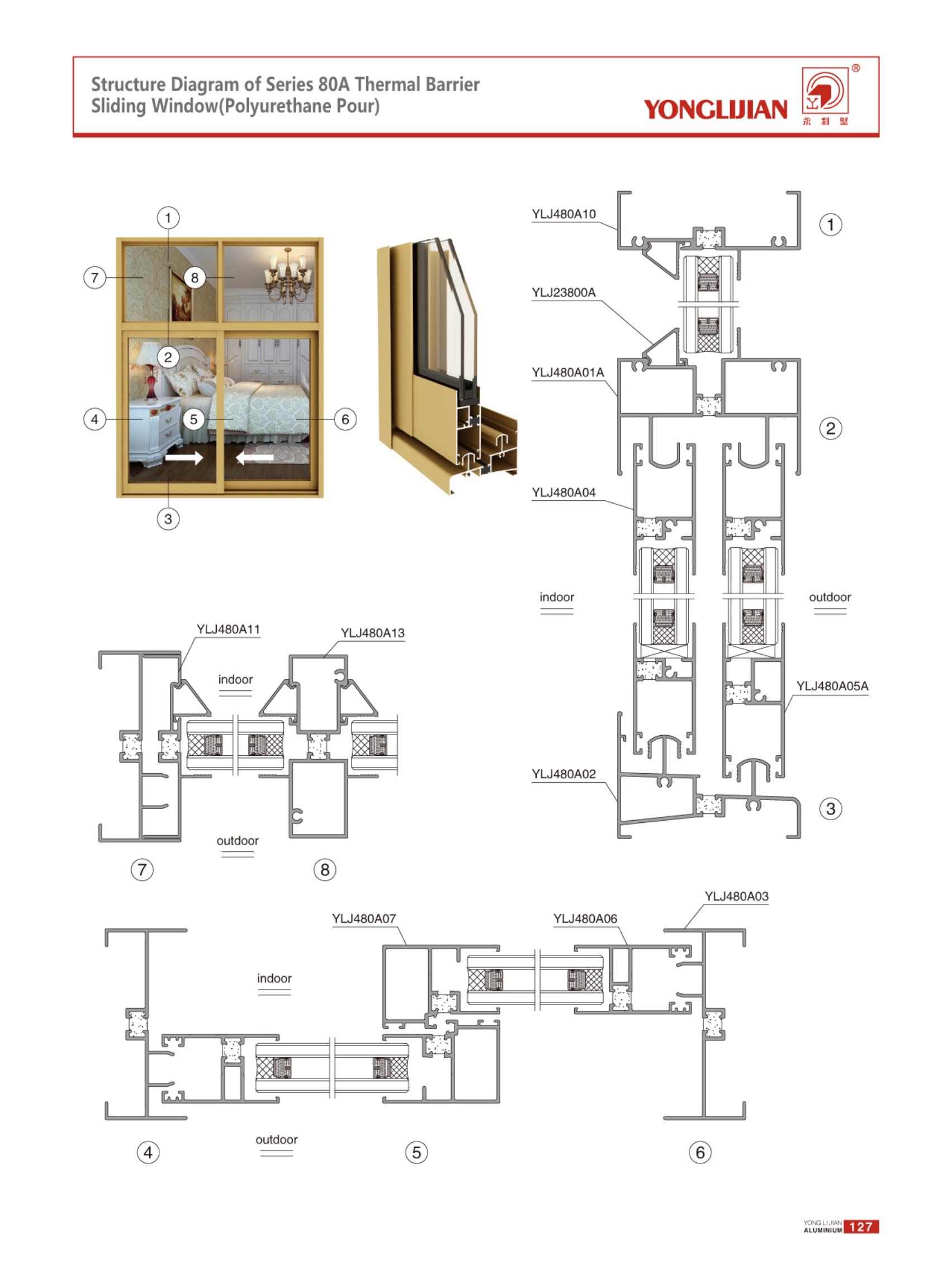
80A tèmik baryè glisman fenèt
Pwodwi ankèt
Non.
85J tèmik baryè glisman fenèt
Pwodwi detay
Pwodwi ankèt
Sèvis sou entènèt
sales@gd-ylj.com
+86-757-88809016