218 Dinding Langsir Bingkai Separuh Tersembunyi

Pertanyaan Produk
Maklumat produk

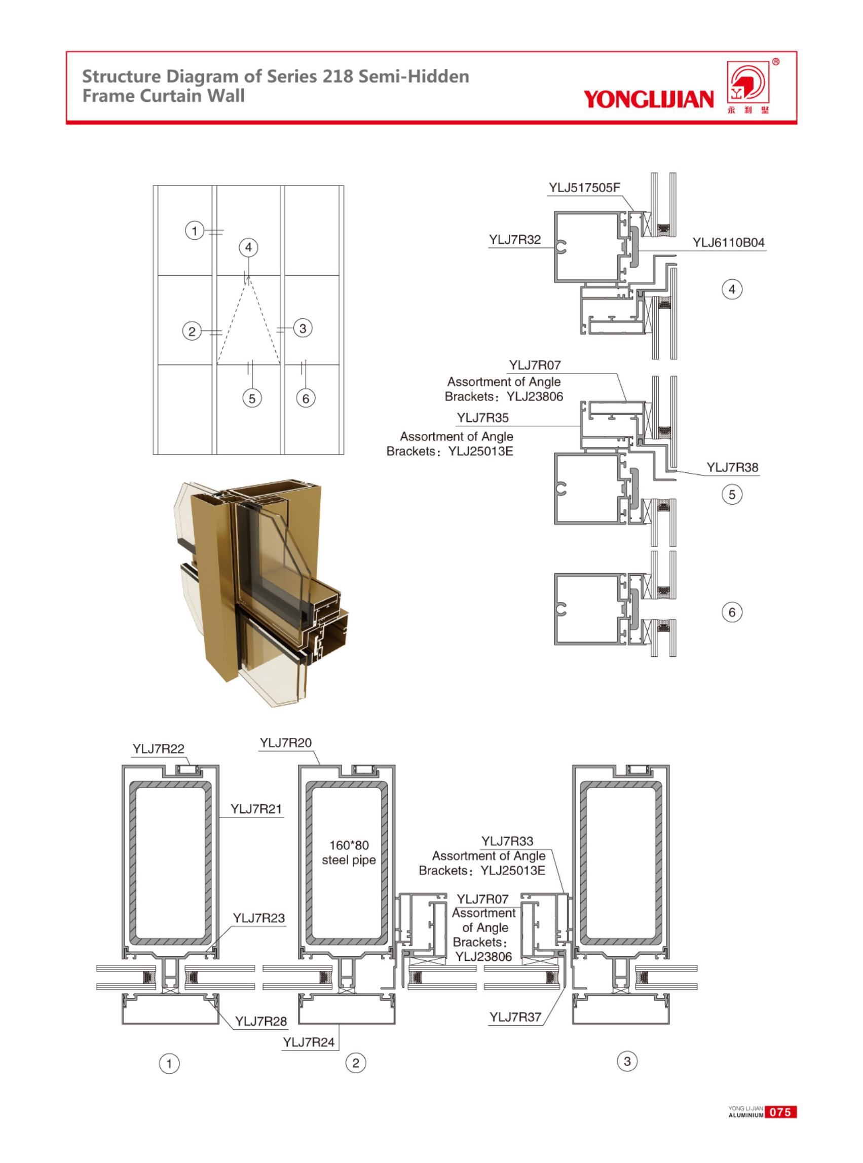
Structure Diagram of Series 218 Semi-HiddenFrame Curtain Wall.jpg

Structure Diagram of Series 218 Semi-HiddenFrame Curtain Wall (2).jpg

Structure Diagram of Series 218 Semi-HiddenFrame Curtain Wall (3).jpg

Structure Diagram of Series 218 Semi-HiddenFrame Curtain Wall (4).jpg


Pertanyaan Produk