+86-757-88809016
sales@gd-ylj.com
Swahili
English
简体中文
ไทย
Filipino
Kiswahili
Français
Deutsch
لالعربية
Kreyòl Ayisyen
Bahasa Melayu
Українська
Español
Home
Kuhusu Sisi
Bidhaa
Profaili ya ukuta wa pazia
Siri Frame Pazia Ukuta
Inaonekana Frame, Hidden Frame, Semi Hidden Frame Pazia Ukuta
Inaonekana Frame Pazia Ukuta
Semi Siri Frame Pazia Ukuta
Wasifu wa Furnishing wa Nyumbani
Upande hung dirisha mfululizo
Sliding mlango na dirisha mfululizo
Windows na milango
Mfululizo wa Dirisha la Sliding
Upande hung dirisha mfululizo
Mfululizo wa Mlango
Wasifu wa kawaida wa kawaida
Insulated madirisha na milango
Dirisha la nje la casement
Dirisha la casement la ndani
Dirisha la casement la ndani (nje)
Mlango wa nje wa swing
Mlango wa ndani wa swing
Dirisha la kuteleza
mlango wa kuteleza
Habari
Habari za kampuni
Kesi
Heshima
Wasiliana Nasi
Bidhaa
Home
>
Bidhaa
>
Windows na milango
>
Mfululizo wa Dirisha la Sliding
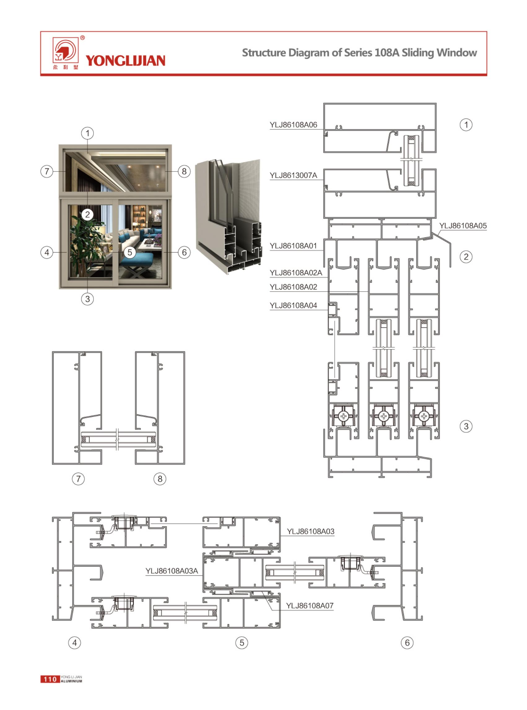
Mfululizo 108A Dirisha la kuteleza
Uchunguzi wa Bidhaa
Mfululizo wa 90 Dirisha la kuteleza
Hapana.
Maelezo ya Bidhaa
Uchunguzi wa Bidhaa
Huduma za Mtandaoni
sales@gd-ylj.com
+86-757-88809016