+86-757-88809016
sales@gd-ylj.com
Filipino
English
简体中文
ไทย
Filipino
Kiswahili
Français
Deutsch
لالعربية
Kreyòl Ayisyen
Bahasa Melayu
Українська
Español
Bahay
Tungkol sa Amin
Produkto
Mga profile sa dingding ng kurtina
Nakatagong Frame Curtain Wall
Nakikitang Frame, Nakatagong Frame, Semi Nakatagong Frame Curtain Wall
Nakikitang Frame Curtain Wall
Semi Nakatagong Frame Curtain Wall
Mga Profile ng Home Furnishing
Nakasabit sa gilid na serye ng bintana
Serye ng sliding door at window
Mga bintana at pinto
Serye ng Sliding Window
Nakasabit sa gilid na serye ng bintana
Serye ng Pinto
Maginoo karaniwang mga profile
Mga insulated na bintana at pinto
Panlabas na window ng casement
Panloob na window ng casement
Panloob (panlabas) na window ng casement
Panlabas na swing door
Panloob na swing door
Sliding window
dumudulas na pinto
Balita
Balita ng kumpanya
Kaso
karangalan
Makipag-ugnayan sa Amin
Produkto
Bahay
>
Produkto
>
Mga profile sa dingding ng kurtina
>
Nakikitang Frame Curtain Wall
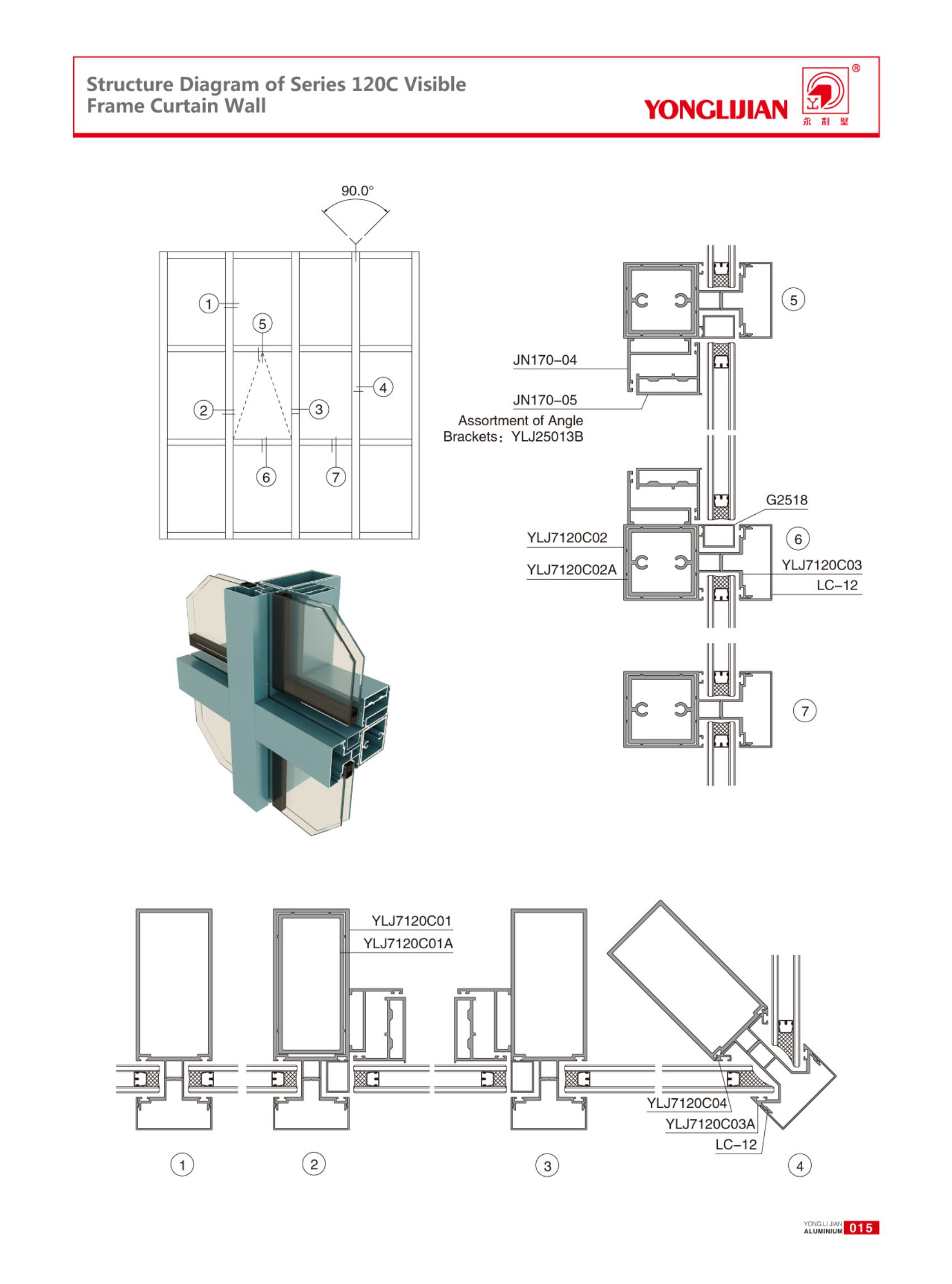
120C Nakikitang Frame Curtain Wall
Pagtatanong ng Produkto
120-200 Nakikitang Frame Curtain Wall
163, 183, 193 Nakikitang Frame Curtain Wall
Mga Detalye ng Produkto
Pagtatanong ng Produkto
Mga Serbisyong Online
sales@gd-ylj.com
+86-757-88809016